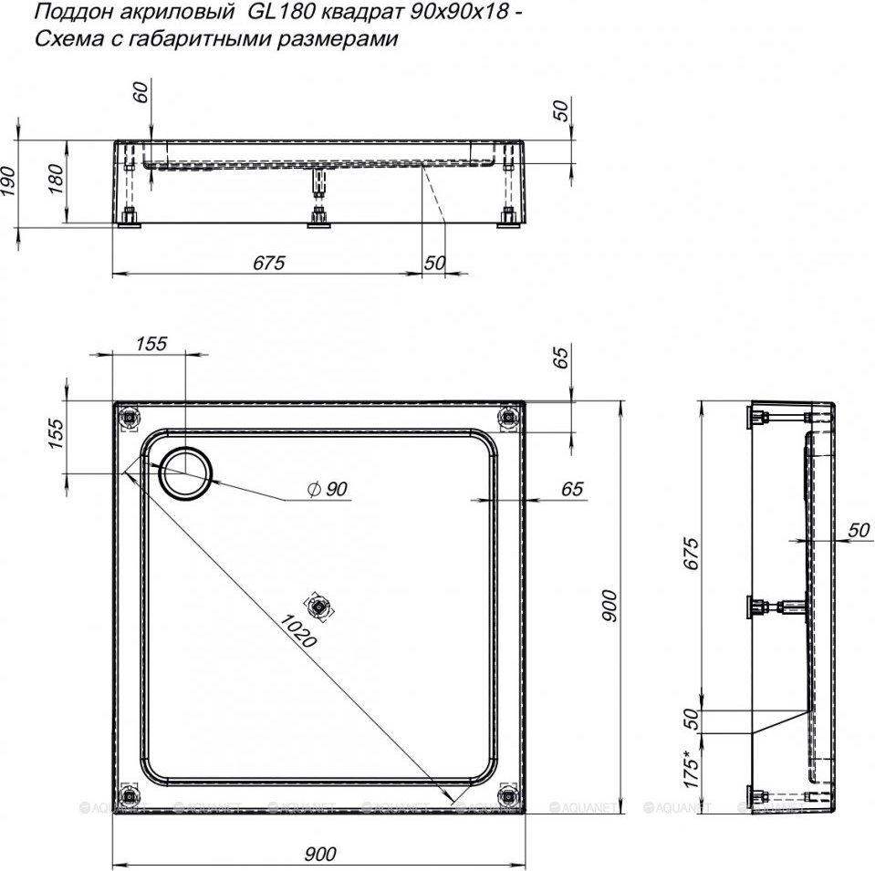
Поддон Aquanet GL180 90x90 см 265570
- Оплата при получении товара (условия оплаты уточняйте у менеджеров);
- Подборка товара по Вашему дизайн-проекту или запросу;
- Работа с дизайнерами, прорабами и застройщиками на особых условиях;
- Скидки на комплексные заказы.
- Различные и удобные Вам способы оплаты;
- Лучшая цена;
- КЕШБЭК;
- Индивидуальный менеджер;
- Официальная гарантия от завода производителя.
- Наличными при получении
- Картами Мир, Visa и MasterCard
- Безналичный расчет
Поддон Aquanet GL180, сифон в комплекте, размер 900х900х190 мм. Цвет белый.
Отзывы не найдены
